Ledig Lägenhet 2 rok, vån 2 på Kanslihusgränd 13 i Östersund

Längst upp på Stadsdel Norr, med cirka tio minuters promenadväg till Östersunds centrum ligger hyreslägenheterna i kvarteret Lugnet.

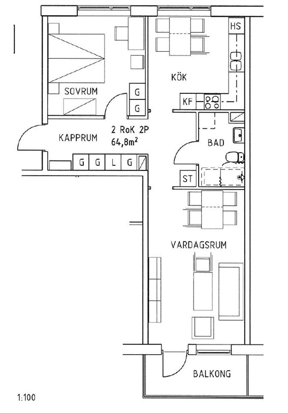
Denna tvåa om 65 kvm med ett stort härligt vardagsrum med plats för både soffgrupp och en matplats om man så önskar. Köket har bra med arbetsyta och gott med utrymme för en bord och stolar. Det rymliga sovrummet har plats för arbetsplats för dig som behöver jobba hemifrån eller studerar. Badrum med plastmatta.

Tillhörande förråd finns i källaren.
Vill man hyra ett extra kallförråd kan man ansöka om det via en separat kö.
Tvättstuga finns i på Kanslihusgränd 12,13,17,21

Fastigheten är anslutna till Telia.
Bredband tecknas av hyresgästen via Telias öppna fibernät, vilket innebär att du kan välja mellan flera olika tjänsteleverantörer

I anslutning till husen finns både p-plats och carport att hyra via separat kö.

Lägenhet

10 924 kr/mån (varmhyra)

Kanslihusgränd 13, 83132 Östersund

Hyresvärd: Riksbyggen

Rum
2 rok
Yta
64 m²
Våning
2
Kommun
Östersund
✓ Balkong ✓ Hiss ✓ Diskmaskin ✓ Tvättstuga ✓ Husdjur OK

Om denna bostad

Hyresrätt på Kanslihusgränd 13 i Östersund med 2 rum och 64 kvm boyta. Månadshyran ligger på 10 924 kr.

Bostaden ligger i stadsdelen Östersund norr i Östersund. Lägenheten finns på våning 2.

Till bostaden hör balkong, hiss, diskmaskin och tvättstuga. Husdjur är välkomna.

Fler lediga lägenheter finns i Östersund norr & Östersund kommun. Se alla lediga hyresrätter på Kanslihusgränd.

Planritning

Planritning

Karta

Ansök hos hyresvärden →

Källa: riksbyggen • Senast uppdaterad: 10 Apr 2026 • Hyresvärden kontrollerad: 11 Apr 2026

Tema