Ledig Lägenhet 2 rok, bottenvåning på Kanslihusgränd 15 i Östersund

Längst upp på Stadsdel Norr, med cirka tio minuters promenadväg till Östersunds centrum ligger hyreslägenheterna i kvarteret Lugnet. Området består av 4 stycken flerbostadshus med 5 våningar vardera. Totalt är det 104 lägenheter med ett till tre rum och kök.

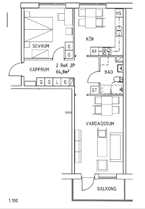
Denna tvåa om 65 kvm med ett stort härligt vardagsrum med plats för både soffgrupp och en matplats om man så önskar, och utgång till lägenhetens balkong. Köket har bra med arbetsyta och gott med utrymme för en bord och stolar. Det rymliga sovrummet har plats för arbetsplats för dig som behöver jobba hemifrån eller studerar. Förråd finns i källare i grannhuset, nr 17.

Vill man hyra ett extra kallförråd kan man ansöka om det via en separat kö.
Tvättstuga finns i på Kanslihusgränd 12,13,17,21
I anslutning till husen finns både p-plats och carport att hyra.

Fastigheterna är anslutna till Telia. TV och streaming Start från Telia ingår i hyran. Bredband tecknas av hyresgästen via Telias öppna fibernät, vilket innebär att du kan välja mellan flera olika tjänsteleverantörer.

badrum med plastmatta.

Lägenhet

10 398 kr/mån (varmhyra)

Kanslihusgränd 15, 83132 Östersund

Hyresvärd: Riksbyggen

Rum
2 rok
Yta
64 m²
Kommun
Östersund
✓ Balkong ✓ Hiss ✓ Diskmaskin ✓ Tvättstuga ✓ Husdjur OK

Om denna bostad

Hyresrätt på Kanslihusgränd 15 i Östersund med 2 rum och 64 kvm boyta. Månadshyran ligger på 10 398 kr.

Bostaden ligger i stadsdelen Östersund norr i Östersund. Lägenheten finns på bottenvåningen.

Till bostaden hör balkong, hiss, diskmaskin och tvättstuga. Husdjur är välkomna.

Fler lediga lägenheter finns i Östersund norr & Östersund kommun. Se alla lediga hyresrätter på Kanslihusgränd.

Planritning

Planritning

Karta

Ansök hos hyresvärden →

Källa: riksbyggen • Senast uppdaterad: 10 Apr 2026 • Hyresvärden kontrollerad: 11 Apr 2026

Tema