Ledig Lägenhet 3 rok, vån 3 på Venngarn 302E i Sigtuna

Välkommen till denna hemtrevliga och ljusa lägenhet med ett stilrent kök och vackra detaljer! Köket är smakfullt renoverat med en lång bänkskiva i massivt trä, vita skåpluckor och klassiska beslag. Det är utrustat med modern spishäll, inbyggd ugn och gott om förvaringsutrymme.

De vackra trägolven ger en varm och rustik känsla, och det stora fönstret släpper in rikligt med naturligt ljus. Från köket har du en fantastisk utsikt över ett öppet landskap, vilket skapar en lugn och harmonisk atmosfär.

Lägenheten har en smart planlösning och bevarade detaljer som gör den både charmig och funktionell. Dessutom finns parkeringsplatser med elbilsladdning, vilket gör det smidigt för dig som har elbil.

Lägenhet

14 000 kr/mån (varmhyra)

Venngarn 302E, 19391 Sigtuna

Hyresvärd: Östra Ågatan Fastigheter AB

Rum
3 rok
Yta
72 m²
Våning
3
Kommun
Sigtuna
✓ Hiss ✓ Diskmaskin ✓ Tvättstuga ✓ Husdjur OK

Om denna bostad

Hyresrätt på Venngarn 302E i Sigtuna med 3 rum och 72 kvm boyta. Månadshyran ligger på 14 000 kr.

Till bostaden hör hiss, diskmaskin och tvättstuga. Husdjur är välkomna.

Fler lediga lägenheter finns i Sigtuna kommun. Se alla lediga hyresrätter på Venngarn.

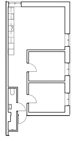
Planritning

Planritning

Karta

Ansök hos hyresvärden →

Källa: ostra-agatan-fastigheter • Senast uppdaterad: 30 Mar 2026 • Hyresvärden kontrollerad: 11 Apr 2026

Tema