Ledig Seniorbostad 2 rok, bottenvåning på Vångavägen 1A i Hässleholm

Nu tillsätter vi lägenheterna i byggnaden Annexet.

Tillträde är möjligt from 1 maj.

I hjärtat av Vittsjö där du bor med fantastiska rekreationsområde som granne, och ändå bara ett stenkast till handel & tåg/bussförbindelser.
Här kommer du/ni bo i lugn harmonisk miljö med tillgång till det lummiga parkområdet som endast kommer kunna beträdas av boende & besökande.

Om boendet:
Här har du ett nybyggt boende som håller hög standard. Lägenheten har kök från Ballingslöv med vitvaror från Cylinda.
Diskmaskin i samtliga kök & tvätt/tork-maskin i badrummet.
Härlig balkong med fantastiskt utsikt över tornet & parkområdet.

Storlek & hyra:
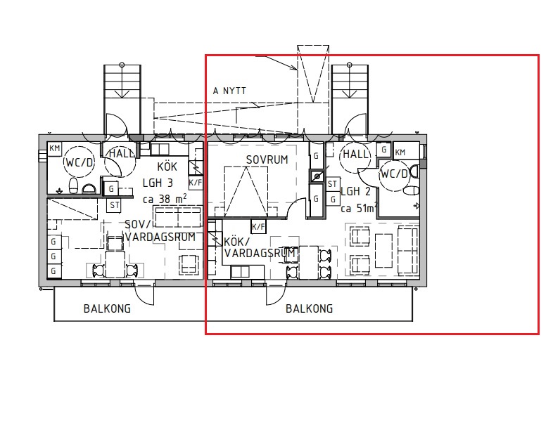
2 rum & kök – 51 kvm – varmhyra: 8590:-

Seniorbostad

8 650 kr/mån (inkl. el)

Vångavägen 1A, 28266 Hässleholm

Hyresvärd: Casolino Bostäder & Lokaler

Rum
2 rok
Yta
51 m²
Kommun
Hässleholm
✓ Balkong ✓ Parkering ✓ Diskmaskin ✓ Husdjur OK 👴 Seniorbostad

Om denna bostad

Seniorbostad på Vångavägen 1A i Hässleholm – 2 rum, 51 kvm med lugnt läge. Månadshyran ligger på 8 650 kr.

Bostaden ligger i stadsdelen Vittsjö i Hässleholm. Lägenheten finns på bottenvåningen.

Till bostaden hör balkong, parkering och diskmaskin. Husdjur är välkomna.

Fler lediga lägenheter finns i Vittsjö & Hässleholm kommun. Se alla lediga hyresrätter på Vångavägen.

Planritning

Planritning

Karta

Ansök hos hyresvärden →

Källa: casolino-bostader-lokaler • Senast uppdaterad: 30 Mar 2026 • Hyresvärden kontrollerad: 11 Apr 2026

Tema