Ledig Lägenhet 5 rok, vån 2 på Tvillingstavägen 1C i Örnsköldsvik

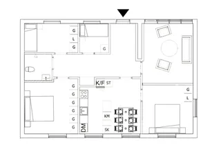
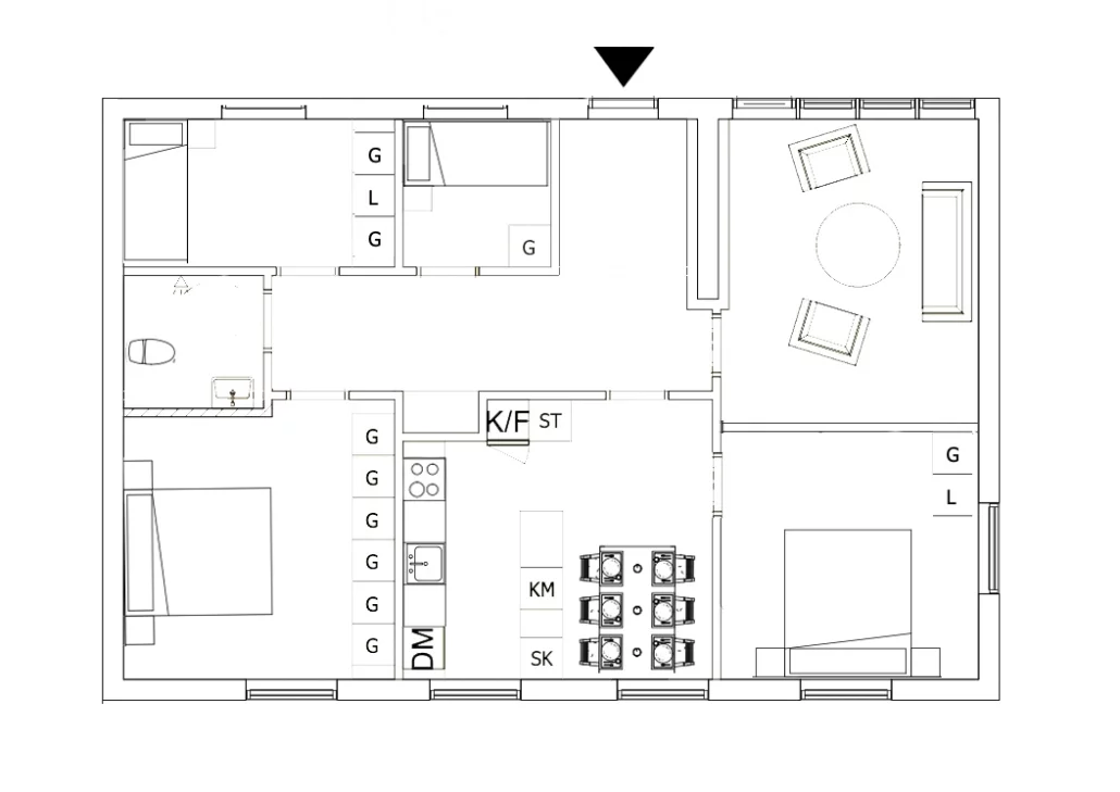
Ljus lägenhet på plan 2 i trefamiljshus. God förvaring, solig uteplats med egen trädgård, fyra rymliga sovrum med god förvaring, stort kök med tvättmaskin och matplats för 6 personer. Badrum med dusch och ny tvättmaskin+torktumlare. Entré med fungerande kamin och stor rymlig hall med förvaringsmöjligheter. Vardagsrum med stora fönster och dörr ut till trädgården. Vacker öppen spis (ej brukbar). Möjligt att hyra parkeringsplats med motorvärmare för 250 kr/månaden, det finns två tillgängliga.

Trevligt och lugnt område i Ås, nära slalombacken, lekplatser, kommunikationer. Många barnfamiljer i området. Välkommen på visning!

Lägenhet

11 350 kr/mån (varmhyra)

Tvillingstavägen 1C, 89130 Örnsköldsvik

Hyresvärd: Stilliam AB

Rum
5 rok
Yta
100 m²
Våning
2
Kommun
Örnsköldsvik
✓ Diskmaskin ✓ Husdjur OK

Om denna bostad

Rymlig 5-rumslägenhet på Tvillingstavägen 1C i Örnsköldsvik. Bostaden omfattar 100 kvm. Månadshyran ligger på 11 350 kr.

Bostaden ligger i stadsdelen Översjäla-Ås i Örnsköldsvik. Lägenheten finns på våning 2.

Till bostaden hör diskmaskin. Husdjur är välkomna.

Fler lediga lägenheter finns i Översjäla-Ås & Örnsköldsvik kommun. Se alla lediga hyresrätter på Tvillingstavägen.

Planritning

Planritning

Karta

Ansök hos hyresvärden →

Källa: stilliam • Senast uppdaterad: 30 Mar 2026 • Hyresvärden kontrollerad: 11 Apr 2026

Tema