Ledig Lägenhet 2 rok, bottenvåning på Traversvägen 27 C i Jönköping

Denna annons finns inte längre

Annonsen har tagits bort av hyresvärden. Men oroa dig inte – det finns fler liknande bostäder att utforska!

Kommun Jönköping
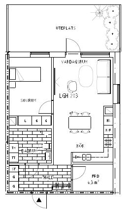
Storlek 2 rum, 54 m²
Hyra var 7 907 kr/mån
Sök liknande bostäder (2 rok) → Visa alla lediga bostäder på Traversvägen →