Ledig Lägenhet 2 rok, bottenvåning på Telivägen 23 i Nynäshamn

Lägenheterna på Fyren i Nynäshamn är unika på många sätt, och det är precis så de är tänkta att vara. De är designade för att ge en känsla av välbefinnande och trivsel.

Varje lägenhet har en rymlig balkong, och vissa har till och med två. Många erbjuder havsutsikt och generösa mängder naturligt ljus.
Havets skönhet återspeglas i träfasadens stora glaspartier, vilket ger huset olika nyanser och uttryck beroende på årstid och tid på dygnet.

På den upplysta och grönskande innergården kan barnen leka fritt. Här finns odlingslådor, en vacker pergola och gott om plats för cykelparkering.

Lägenheterna är utrustade med stora glaspartier som ger utsikt över Östersjön, samt rymliga balkonger med glasräcken. Golven pryds av ekparkett i 3-stav och väggarna har en ljusgrå kulör. Köken kommer från Marbodal och är utrustade med diskmaskin och vitvaror.

Interiöra bilder och bilder från utsikt är exempelbilder från lägenheter i fastigheten och är ej unika för just denna lägenhet. Vi reserverar oss för att årlig höjning kan ske mellan publicering, kontrakt och tillträde.

Lägenhet

8 171 kr/mån (kallhyra)

Telivägen 23, 14942 Nynäshamn

Hyresvärd: Riksbyggen

Rum
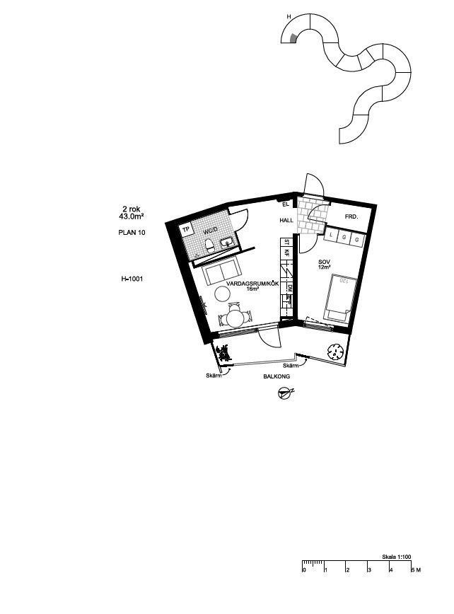
2 rok
Yta
43 m²
Kommun
Nynäshamn
✓ Balkong ✓ Hiss ✓ Diskmaskin ✓ Husdjur OK

Om denna bostad

Hyresrätt på Telivägen 23 i Nynäshamn med 2 rum och 43 kvm boyta. Månadshyran ligger på 8 171 kr.

Bostaden ligger i stadsdelen Nynäshamns stad-norra i Nynäshamn. Lägenheten finns på bottenvåningen.

Till bostaden hör balkong, hiss och diskmaskin. Husdjur är välkomna.

Fler lediga lägenheter finns i Nynäshamns stad-norra & Nynäshamn kommun. Se alla lediga hyresrätter på Telivägen.

Planritning

Planritning

Karta

Ansök hos hyresvärden →

Källa: riksbyggen • Senast uppdaterad: 1 Apr 2026 • Hyresvärden kontrollerad: 11 Apr 2026

Tema