Ledig Lägenhet 2 rok, vån 1 på Stationsvägen 3C i Borås

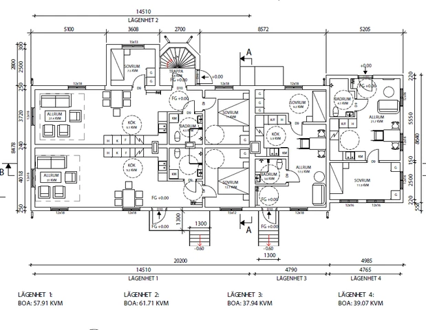
En 2a om ca 39 kvm. Lägenhet 3 på ritning. Öppen planlösning mellan kök och vardagsrum. Ett mindre sovrum.
Genomgående vitmålade väggar och ekparkett

Hall
Stor hall med plats med förvaring.

Kök
Vitt Länghem kök, Vitt 10×30 kakel blank ovan diskbänk. Ej Diskmaskin.

Badrum
Grå plastmatta på golv (Termastar Pure 50605) och vitt kakel på vägg(25×40 vit blank – ljusgrå fog)
Inredning: Dusch med drapperi, wc, handfat, kommod, kombinerad tvättmaskin/torktumlare(som är placerad i köket).

Sovrum- separat sovrum(som idag används som tv-rum). Plats för säng och tillhörande möblemang.

Nära till torg med affärer och butiker och grönskande områden. Kollektivtrafiken går precis utanför fastigheten och tar dig med enkelhet till Borås Centrum.

Bredband – mobilt bredband (bekostas av hyresgäst) fiber ej indraget i fastigheten.

Ventilation: självdrag med mekanisk frånluft i badrum och kök

Värme: Luftvattenpump med radiatorer.

Lägenhet

4 400 kr/mån (varmhyra)

Stationsvägen 3C, 51631 Borås

Hyresvärd: Vi Bostäder AB

Rum
2 rok
Yta
39 m²
Våning
1
Kommun
Borås
✓ Parkering ✓ Husdjur OK

Om denna bostad

Hyresrätt på Stationsvägen 3C i Borås med 2 rum och 39 kvm boyta. Månadshyran ligger på 4 400 kr.

Till bostaden hör parkering. Husdjur är välkomna.

Fler lediga lägenheter finns i Borås kommun. Se alla lediga hyresrätter på Stationsvägen.

Planritning

Planritning

Karta

Ansök hos hyresvärden →

Källa: vi-bostader • Senast uppdaterad: 4 May 2026 • Hyresvärden kontrollerad: 4 May 2026