Ledig Lägenhet 6 rok, bottenvåning på S:t Klemensgatan 9 i Gotland

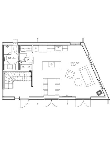
Villan erbjuder 6 rum fördelade på två våningsplan. På nedervåningen möts du av en ljus och öppen planlösning som integrerar kök och vardagsrum. På samma våningsplan finns ett badrum med dusch samt en tvättstuga.
På övervåningen finns fyra sovrum med totalt sex bäddar. Det största sovrummet har en dubbelsäng samt en klädkammare vilket skapar gott om förvaringsutrymme. Ett sovrum har två enkelsängar. De återstående två sovrummen har varsin enkelsäng. Här finns också ett badrum med dusch.
Bostaden hyrs ut möblerad.
Internet och basutbud TV ingår i hyran.
1 st parkeringsplats ingår i hyran.
Kostnad för el, uppvärmning och varmvatten tillkommer.
Rökning och husdjur är ej tillåtet.
Deposition om en månadshyra.

Boendet hyrs ut under perioden 2026-03-01 — 2026-06-15. Finns önskemål om ett tillsvidarekontrakt så kan det diskuteras.

Lägenhet

22 000 kr/mån (kallhyra)

S:t Klemensgatan 9, 62155 Gotland

Hyresvärd: Liljestrand Fastigheter

Rum
6 rok
Yta
100 m²
Kommun
Gotland
✓ Diskmaskin ✓ Tvättstuga ✗ Inga husdjur

Om denna bostad

Rymlig 6-rumslägenhet på S:t Klemensgatan 9 i Gotland. Bostaden omfattar 100 kvm. Månadshyran ligger på 22 000 kr.

Bostaden ligger i stadsdelen Innerstaden-Visby norra i Gotland. Lägenheten finns på bottenvåningen.

Till bostaden hör diskmaskin och tvättstuga.

Fler lediga lägenheter finns i Innerstaden-Visby norra & Gotland kommun. Se alla lediga hyresrätter på S:t Klemensgatan.

Planritning

Planritning

Karta

Ansök hos hyresvärden →

Källa: liljestrand-fastigheter • Senast uppdaterad: 28 Mar 2026 • Hyresvärden kontrollerad: 11 Apr 2026

Tema