Ledig Lägenhet 3 rok, vån 2 på Norrby Långgata 5B i Borås

Lägenheten och fastigheten hittar du i kanten av Norrby vid Centralbron.

LÄGENHETEN
Lägenheten ligger på andra våningen i ett tvåvåningshus i Borås.
Köket i lägenheten har vita skåp och en ljus virrvarr bänkskiva. Köket är utrustat med fläkt, spis och kyl/frys.
Badrummet är utrustat med toalett, spegelskåp, handfat och duschkabin.

OMRÅDET
Lägenheten är centralt belägen, med endast 300 meter till Borås resecentrum och dryga 1 km till högskolan. Det centrala läget erbjuder även närhet till, restauranger, gym, livsmedelsbutiker, frisörer, vårdcentral och butiker – allt inom bekvämt gångavstånd.

BRA ATT KÄNNA TILL
Förråd och gemensam tvättstuga finns i fastigheten.
Vatten och värme ingår i hyran.
Bredband: Fiber genom Nätkraft Borås.

Lägenhet

8 662 kr/mån (varmhyra)

Norrby Långgata 5B, 50435 Borås

Hyresvärd: Pulsen Fastigheter

Rum
3 rok
Yta
75 m²
Våning
2
Kommun
Borås
✓ Tvättstuga ✓ Husdjur OK

Om denna bostad

Hyresrätt på Norrby Långgata 5B i Borås med 3 rum och 75 kvm boyta. Månadshyran ligger på 8 662 kr.

Bostaden ligger i stadsdelen Norrby i Borås. Lägenheten finns på våning 2.

Till bostaden hör tvättstuga. Husdjur är välkomna.

Fler lediga lägenheter finns i Norrby & Borås kommun. Se alla lediga hyresrätter på Norrby Långgata.

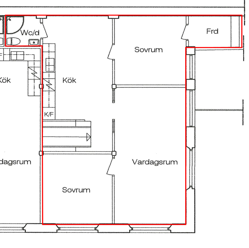
Planritning

Planritning

Karta

Ansök hos hyresvärden →

Källa: pulsen-fastigheter • Senast uppdaterad: 28 Mar 2026 • Hyresvärden kontrollerad: 11 Apr 2026

Tema