Ledig Lägenhet 1 rum, vån 3 på Malmgatan 1 B i Köping

43 kvm – Malmgatan 1B, våning 3 – lugnt och trivsamt läge

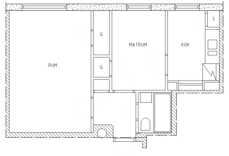
Trevlig och välplanerad 1,5–2:a om 43 kvm på våning 3. Lägenheten har ett stort vardagsrum, separat matrum som kan användas som sovrum eller kontor, kök, badrum med badkar samt bra förvaring via två garderober/klädkammare.

Huset är lugnt och välskött med fiber och TV-utbud via Telia.
Gångavstånd till centrum, mataffär, kollektivtrafik och grönområden.

Perfekt för dig som söker ett lättskött och ljust boende i Köping!

Tv- och bredband (100mbit/s) tillkommer med 395kr/mån utöver hyran för bostaden.

Lägenhet

5 293 kr/mån (varmhyra)

Malmgatan 1 B, 73132 Köping

Hyresvärd: Nord Properties AB

Rum
1 rok
Yta
43 m²
Våning
3
Kommun
Köping
✓ Tvättstuga ✗ Inga husdjur

Om denna bostad

Hyresrätt på Malmgatan 1 B i Köping med ett rum och 43 kvm boyta. Månadshyran ligger på 5 293 kr.

Fler lediga lägenheter finns i Köping kommun. Se alla lediga hyresrätter på Malmgatan.

Planritning

Planritning

Karta

Ansök hos hyresvärden →

Källa: nord-properties-ab • Senast uppdaterad: 30 Mar 2026 • Hyresvärden kontrollerad: 11 Apr 2026

Tema