Ledig Lägenhet 1.5 rok, vån 1 på Kvintettgatan 4 i Karlstad

Välkommen till Kvintettgatan. Denna lägenheten är en 1,5:a med sovalkov och har genomgående stilrena färger med ett ljust parkettgolv och vitmålade väggar. Det moderna köket består av vita köksluckor, mörkare bänkskiva och bland annat en diskmaskin som underlättar vardagen. I det fräscha badrummet med ett mörkare klinkergolv och vita kakelplattor finns det dessutom en kombinerad tvättmaskin/torktumlare. Alla lägenheter har fransk balkong och öppen fiber!
Från Campus Hills har man utmärkta kommunikationsmöjligheter, med närhet till både natur och bekvämligheter runt hörnet!

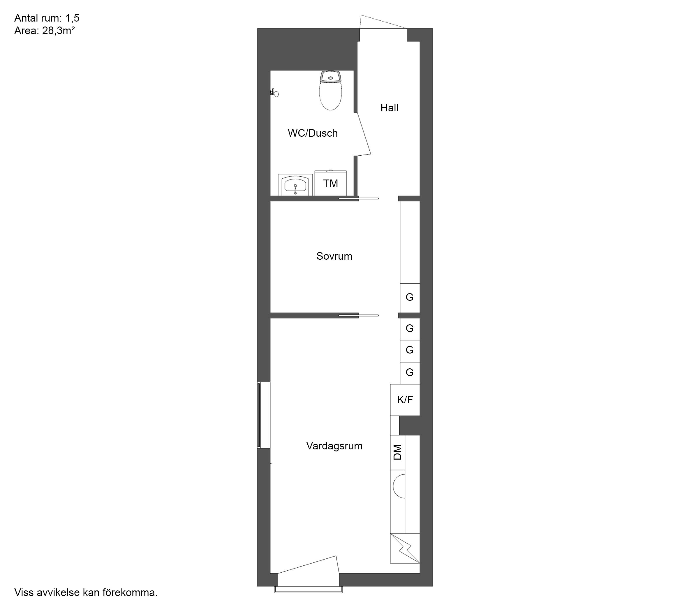
OBS! Planritningen kan variera, bilden är referens och kan avvika från aktuell lägenhet. Så var uppmärksam på att mått och utförande ej är exakt.

Lägenhet

5 986 kr/mån (kallhyra)

Kvintettgatan 4, 65636 Karlstad

Hyresvärd: Wood & Hill

Rum
1.5 rok
Yta
28 m²
Våning
1
Kommun
Karlstad
✓ Hiss ✓ Diskmaskin ✗ Inga husdjur

Om denna bostad

Kompakt 28 kvm lägenhet på Kvintettgatan 4 i Karlstad. Månadshyran ligger på 5 986 kr.

Bostaden ligger i stadsdelen Kronoparken norra i Karlstad. Lägenheten finns på våning 1.

Till bostaden hör hiss och diskmaskin.

Fler lediga lägenheter finns i Kronoparken norra & Karlstad kommun. Se alla lediga hyresrätter på Kvintettgatan.

Planritning

Planritning

Karta

Marknadshistorik för Kvintettgatan 4

Den här adressen har annonserats 32 gånger sedan februari 2026 via Stockholms Bostadsförmedling.

Storlek Antal Snittyta Snitthyra kr/m² Spann
1 rok 28 26 m² 5 638 kr 221 5 135–5 986 kr
2 rok 4 38 m² 7 158 kr 188 6 970–7 221 kr

Baserat på alla annonser för denna adress sedan februari 2026.

Ansök hos hyresvärden →

Källa: campus-hills • Senast uppdaterad: 9 May 2026 • Hyresvärden kontrollerad: 9 May 2026