Ledig Lägenhet 3 rok, vån 1 på Klammerdammsgatan 5 i Halmstad

Superfin 3a på våning 1 mitt i Halmstads centrum
Nyrenoverad 2019 i klassisk stil med alla bekvämligheter.
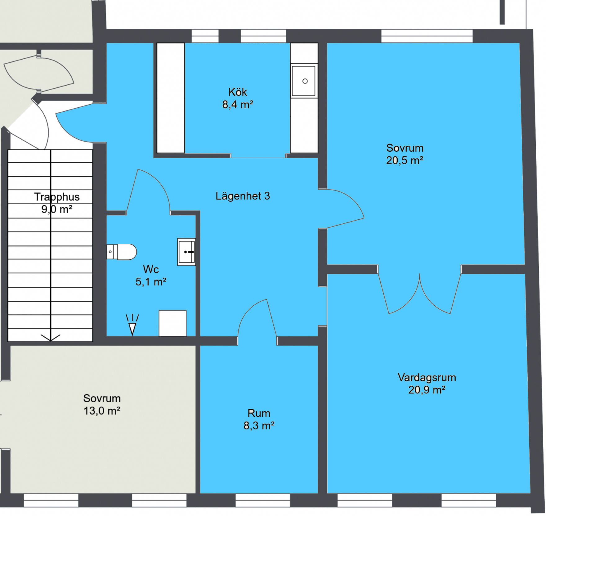
77m2 med salongsdörrar mellan sovrum och vardagsrum som ger möjlighet att öppna upp för ett trevligt flöde.
Väggar är målade i ljusgrått och golv med gråtonade ekparkett
Helkaklat badrum med tvättmaskin och torktumlare
Kök med Ugn,fläkt,micro,diskmaskin,induktionshäll,Kyl/Frys.
Lägenhetern har eget förråd.

Lägenhet

14 155 kr/mån (varmhyra)

Klammerdammsgatan 5, 30243 Halmstad

Hyresvärd: Muscle Fastigheter AB

Rum
3 rok
Yta
77 m²
Våning
1
Kommun
Halmstad
✓ Diskmaskin ✗ Inga husdjur

Om denna bostad

Hyresrätt på Klammerdammsgatan 5 i Halmstad med 3 rum och 77 kvm boyta. Månadshyran ligger på 14 155 kr.

Bostaden ligger i stadsdelen Halmstad centrum-Slottsjord-Kattegatt i Halmstad. Lägenheten finns på våning 1.

Till bostaden hör diskmaskin.

Fler lediga lägenheter finns i Halmstad centrum-Slottsjord-Kattegatt & Halmstad kommun. Se alla lediga hyresrätter på Klammerdammsgatan.

Planritning

Planritning

Karta

Ansök hos hyresvärden →

Källa: muscle-fastigheter • Senast uppdaterad: 28 Mar 2026 • Hyresvärden kontrollerad: 11 Apr 2026

Tema