Ledig Lägenhet 2 rok, bottenvåning på Gamla Åtvidsvägen 12 i Åtvidaberg

Vi erbjuder nu en hyresrabatt om 2000kr/mån till de två första hyresgästerna.

I vackra Björsäter mitt emellan Linköping och Åtvidaberg ligger Ekgården, Ekgården har under många år bland annat fungerat som matsal åt skolan i Björsäter samt äldreboende.

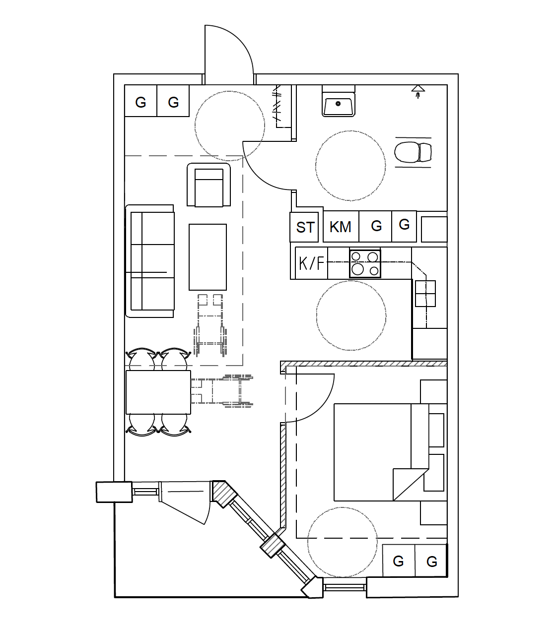
I samband med att Åtvidabergs kommun byggde en egen matsalsbyggnad åt skolan så har vi påbörjat renovering och ombyggnation av byggnaden till ett nytt Trygghetsboende. Vi började under hösten 2024 erbjuda de första färdiga lägenheterna, och sedan successivt de kommande 6-9 månaderna färdigställa alla 19 lägenheter. De flesta lägenheter kommer att ha egen uteplats/balkong/trädgård och variera mellan 25-56 kvm, ettor och tvåor. Dom lägenheter som finns tillgängliga nu är 56kvm.

Det kommer att finnas tillgång till personal alla dagar i veckan, samt gemensamhetsutrymmen för sociala sammankomster och rekreation. Det enda kriteriet för att kunna ansöka om plats är att man har fyllt 65 år.

Lite kort om Björsäter; det finns goda kommunikationer till både Linköping och Åtvidaberg, egen mataffär och café. Nära till naturen och de vackra sjöarna, där Södra Teden ligger närmast.

Lägenhet

5 000 kr/mån (varmhyra)

Gamla Åtvidsvägen 12, 59794 Åtvidaberg

Hyresvärd: Hamravik Förvaltnings AB

Rum
2 rok
Yta
56 m²
Kommun
Åtvidaberg
✓ Balkong ✓ Hiss ✓ Husdjur OK

Om denna bostad

Hyresrätt på Gamla Åtvidsvägen 12 i Åtvidaberg med 2 rum och 56 kvm boyta. Månadshyran ligger på 5 000 kr.

Bostaden ligger i stadsdelen Åtvidaberg nord i Åtvidaberg. Lägenheten finns på bottenvåningen.

Till bostaden hör balkong och hiss. Husdjur är välkomna.

Fler lediga lägenheter finns i Åtvidaberg nord & Åtvidaberg kommun. Se alla lediga hyresrätter på Gamla Åtvidsvägen.

Planritning

Planritning

Karta

Ansök hos hyresvärden →

Källa: hamravik-forvaltnings • Senast uppdaterad: 30 Mar 2026 • Hyresvärden kontrollerad: 11 Apr 2026

Tema