Ledig Lägenhet 5 rok, vån 2 på Ekebyvägen 225 i Vallentuna

Varmt välkommen till Ekebyvägen 225!

Nu ges chansen att hyra detta välplanerade radhus i populärt och familjärt område. Förstahandskontrakt och besittningsskydd. Här välkomnas du direkt av en insynsskyddad altan med fantastiskt söderläge!
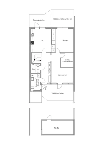
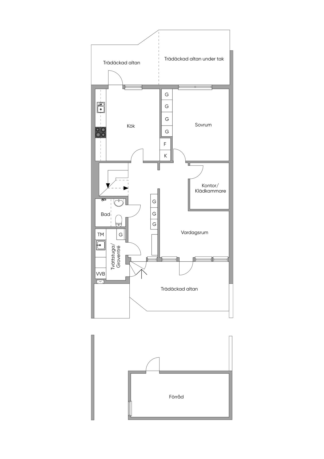
Bostaden omfattar 5 rum, varav 3 sovrum, med en totalyta om 125kvm.

Radhuset är fördelad på två våningsplan med trivsamma och sociala ytor på båda planen. På entréplanet möts du av ett stort vardagsrum med flexibla möbleringsmöjligheter. Härifrån tar du dig smidigt ut till den trädäckade altanen på framsidan. Intill ligger ett ljust och hemtrevligt kök med gott om förvaring samt plats för matbord vid fönstret. Från köket nås ytterligare en trädäckad altan, delvis skyddad under tak, och i direkt anslutning finns en lättskött trädgård.

På övervåningen möts du av ett trivsamt allrum som passar utmärkt som tv-rum eller sällskapsyta. Här finns även två lättmöblerade sovrum med goda möjligheter att anpassa efter behov. Badrummet är helkaklat och utrustat med behaglig golvvärme samt badkar.

Bodil är ett fastighetsbolag som äger villor och radhus. Vi vill förändra förutsättningarna på bostadsmarknaden och hjälpa fler att bli bostadsägare. Därför har vi tagit fram en hyrköpslösning som ger fler chansen att ta steget till ett eget ägande. Driftkostnader tillkommer. Skickas på förfrågan. Välkommen på visning!

Lägenhet

18 900 kr/mån (kallhyra)

Ekebyvägen 225, 18634 Vallentuna

Hyresvärd: Bodil Fastigheter AB

Rum
5 rok
Yta
125 m²
Våning
2
Kommun
Vallentuna
✓ Diskmaskin ✓ Tvättstuga ✓ Husdjur OK

Om denna bostad

Rymlig 5-rumslägenhet på Ekebyvägen 225 i Vallentuna. Bostaden omfattar 125 kvm. Månadshyran ligger på 18 900 kr.

Till bostaden hör diskmaskin och tvättstuga. Husdjur är välkomna.

Fler lediga lägenheter finns i Vallentuna kommun. Se alla lediga hyresrätter på Ekebyvägen.

Planritning

Planritning

Karta

Ansök hos hyresvärden →

Källa: bodil-fastigheter • Senast uppdaterad: 4 May 2026 • Hyresvärden kontrollerad: 4 May 2026