Ledig Lägenhet 6 rok, vån 1 på Diamantslingan 14 i Hässleholm

På toppenläge på Stenberget i Tyringe ligger denna nyrenoverade villa med helt nytt kök och nya ytskikt!
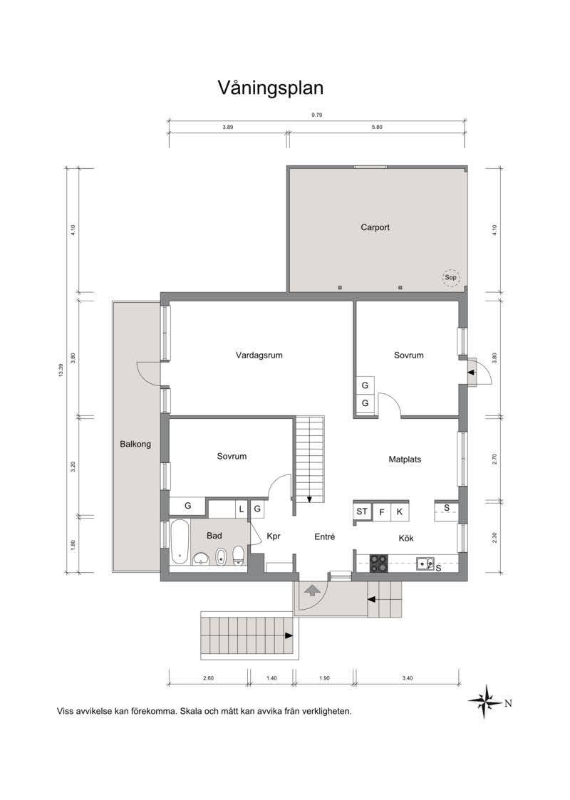
Här får du skogen, med härliga promenadstigar, som närmsta ”granne”. Suterrängvilla som ger ljusa o fina utrymmen i båda planen. Barnvänligt läge med bra cykel/gångväg till både skolan, Tyrs Hov och Idrottsplatsen. Villan är nyrenoverad 2024-2025 med nytt kök, nya ytskikt. Även garaget är nyrenoverat. Det finns 6 rum, varav 4 sovrum, 1 badrum och 1 gästtoalett.

Huset värms upp med luftvärmepump med stöd av element. Kommunalt V/A.

Förstahandskontrakt. 11 800 kr/månaden i kallhyra (alltså tillkommer el, sophämtning, V/A, osv). 2 månaders deposition.

Husdjur tillåtet – men rökare undanbedes.

Välkommen att höra av er för visning och vid frågor!

Lägenhet

11 800 kr/mån (kallhyra)

Diamantslingan 14, 28232 Hässleholm

Hyresvärd: Borta Bra Hemma Bäst AB

Rum
6 rok
Yta
120 m²
Våning
1
Kommun
Hässleholm
✓ Balkong ✓ Diskmaskin ✓ Husdjur OK

Om denna bostad

Rymlig 6-rumslägenhet på Diamantslingan 14 i Hässleholm. Bostaden omfattar 120 kvm. Månadshyran ligger på 11 800 kr.

Bostaden ligger i stadsdelen Tyringe sydöst i Hässleholm. Lägenheten finns på våning 1.

Till bostaden hör balkong och diskmaskin. Husdjur är välkomna.

Fler lediga lägenheter finns i Tyringe sydöst & Hässleholm kommun. Se alla lediga hyresrätter på Diamantslingan.

Planritning

Planritning

Karta

Ansök hos hyresvärden →

Källa: borta-bra-hemma-bast • Senast uppdaterad: 30 Mar 2026 • Hyresvärden kontrollerad: 11 Apr 2026

Tema