Ledig Lägenhet 1 rum, vån 1 på Bergkantsgatan 9 i Grums

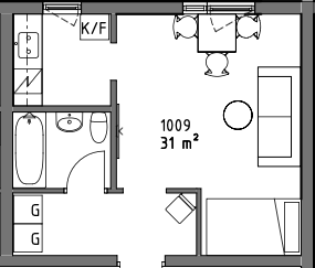
Nyrenoverad etta om ca 31 kvm med ljusa och fräscha ytskikt. Väldisponerade ytor, nytt kök och badrum med god standard. Ytskikten är målade och golvet består av plastmatta. Hyran uppgår till 5200 kr inkl. värme och vatten (ej hushållsel). Fiber finns installerat i lägenheten. Om fastigheten: Fastigheten har under senaste åren genomgått en totalrenovering. Flera lägenheter är helt nyrenoverade och vissa har delvis renoverats med fixade ytskikt. Vidare har trapphusen renoverats, nya postboxar, nya lägenhetsdörrar, installation av fiber m.m. Fastigheten består av 12 st 1 rok (31 kvm) samt 2 st 3 rok (62 kvm). Nära förbindelser med kollektivtrafik till och från Karlstad. Möjligheter att även hyra lager/förråd samt entreprenadboende.

Lägenhet

5 200 kr/mån (varmhyra)

Bergkantsgatan 9, 66433 Grums

Hyresvärd: Steijner & Nordh Invest AB

Rum
1 rok
Yta
31 m²
Våning
1
Kommun
Grums
✓ Tvättstuga ✗ Inga husdjur

Om denna bostad

Kompakt 31 kvm lägenhet på Bergkantsgatan 9 i Grums. Månadshyran ligger på 5 200 kr.

Bostaden ligger i stadsdelen Karlberg i Grums. Lägenheten finns på våning 1.

Till bostaden hör tvättstuga.

Fler lediga lägenheter finns i Karlberg & Grums kommun. Se alla lediga hyresrätter på Bergkantsgatan.

Planritning

Planritning

Karta

Ansök hos hyresvärden →

Källa: steijner-nordh-invest • Senast uppdaterad: 30 Mar 2026 • Hyresvärden kontrollerad: 11 Apr 2026

Tema