Ledig Lägenhet 2 rok, bottenvåning på Babordsgatan 6A i Västerås

Om området
Beläget vid Mälaren öster om centrum, har Öster Mälarstrand kommit att bli ett område som erbjuder en salig blandning av natur, sjö och stad. Här kan du njuta av närhet till bad, skridskoåkning, trevliga parkområden och fantastisk natur. Du har cykelavstånd till centrum och en kort promenad till The Steam Hotel. Här bor du med strandpromenader, gym, caféer och parker runt hörnet.

Om lägenheten
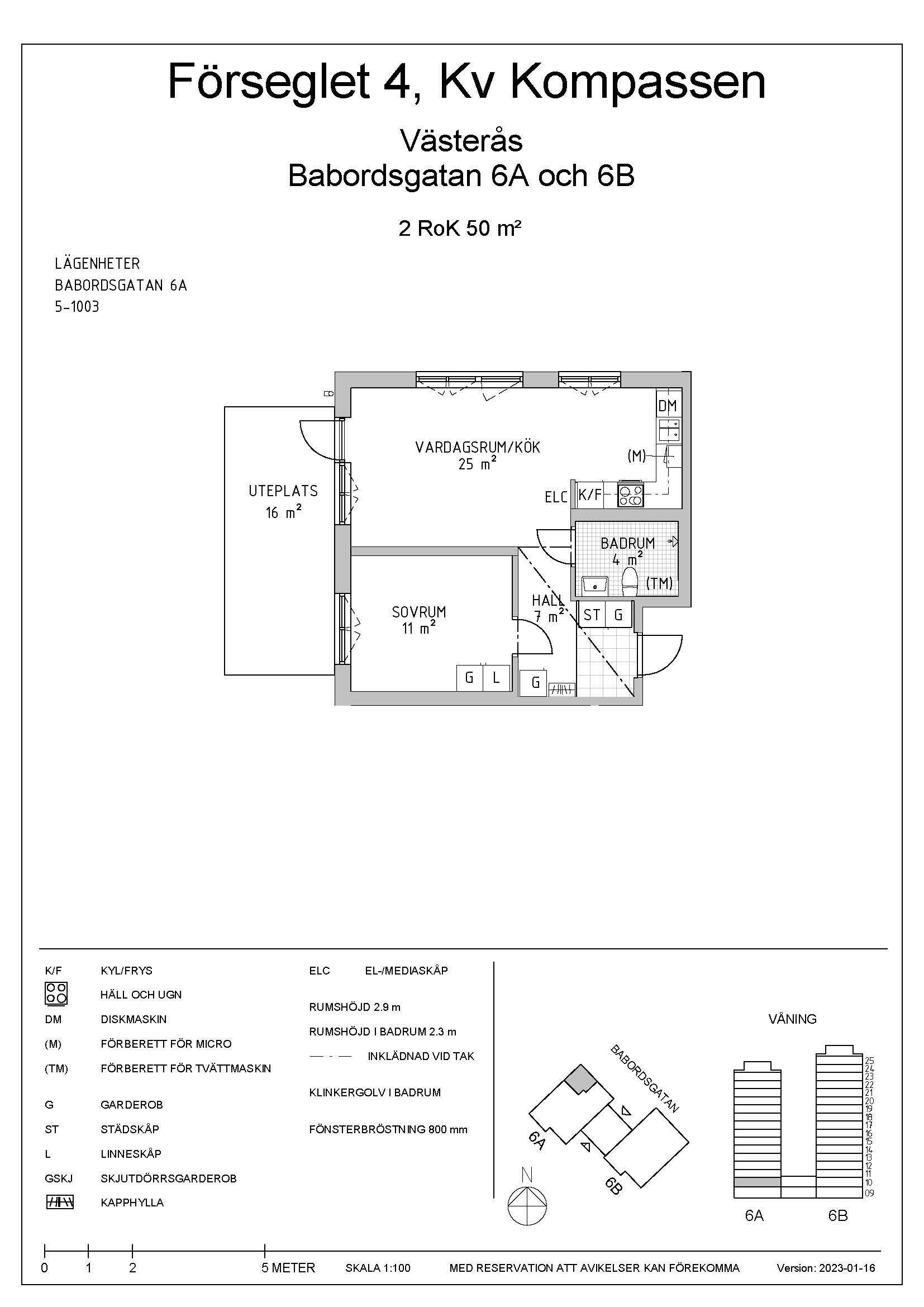
Genomgående ljusa ytskikt, öppen och modern planlösning samt parkettgolv i alla rum. Köket är utrustat med ugn, häll och diskmaskin. Badrum med kaklade väggar, klinkergolv och bra belysning. Förberett för tvättmaskin och torktumlare. Gemensam tvättstuga finns i huset. Fastigheten är ansluten till Telia öppen Fiber. Eget abonnemang med valfri leverantör krävs.

I hyran ingår värme och kallvatten. Kostnad för el och varmvatten debiteras via fastighetsägaren efter din förbrukning. I källaren finns cykelparkering och förråd. Har du bil finns det garageplats att hyra i källarplan, endast en hisstur ner.

Läs mer om fastigheten här:
www.bostadvasteras.se/kompassen

Lägenhet

10 007 kr/mån (kallhyra)

Babordsgatan 6A, 72359 Västerås

Hyresvärd: Savills

Rum
2 rok
Yta
50 m²
Kommun
Västerås
✓ Hiss ✓ Diskmaskin ✓ Tvättstuga ✓ Husdjur OK

Om denna bostad

Hyresrätt på Babordsgatan 6A i Västerås med 2 rum och 50 kvm boyta. Månadshyran ligger på 10 007 kr.

Bostaden ligger i stadsdelen Östra hamnen-Öster Mälarstrand i Västerås. Lägenheten finns på bottenvåningen.

Till bostaden hör hiss, diskmaskin och tvättstuga. Husdjur är välkomna.

Fler lediga lägenheter finns i Östra hamnen-Öster Mälarstrand & Västerås kommun. Se alla lediga hyresrätter på Babordsgatan.

Planritning

Planritning

Karta

Ansök hos hyresvärden →

Källa: savills • Senast uppdaterad: 30 Mar 2026 • Hyresvärden kontrollerad: 11 Apr 2026

Tema