Ledig Lägenhet 3 rok, vån 2 på Åsvägen 11 A i Surahammar

3 rok i Ramnäs – gavellägenhet med balkong

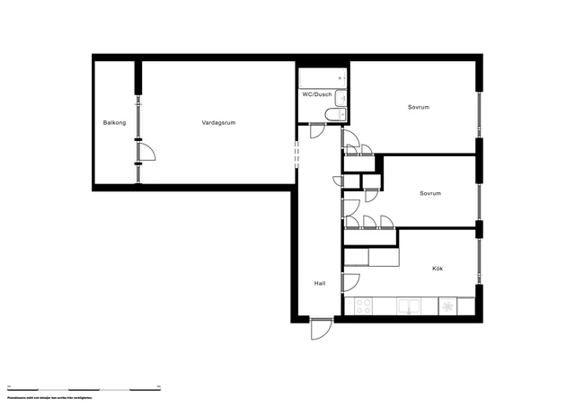
Välkommen till denna ljusa och välplanerade trea på andra våningen i Ramnäs. Lägenheten är en gavellägenhet vilket ger ett fint ljusinsläpp från flera väderstreck och skapar en luftig och trivsam boendemiljö.

Bostaden erbjuder en funktionell planlösning med ett rymligt vardagsrum, två sovrum samt kök med plats för matbord. Från lägenheten finns även balkong som ger en extra yta för avkoppling. Förvaringsmöjligheterna är goda tack vare flera garderober i bostaden. Tvättstuga finns i fastighetens källare.

Lägenheten håller just nu på att målas om för att ge ett fräscht skick inför inflyttning. Visning kan bokas redan nu även om arbetet fortfarande pågår.

Om området

Fastigheten ligger i Ramnäs i ett lugnt område med närhet till både natur och service. Busshållplats finns inom gångavstånd med goda kommunikationer mot Surahammar och Västerås. Förskola och F–6 skola finns endast några hundra meter från bostaden.

Fakta

Balkong

Fiber finns installerat

Tvättstuga i fastigheten

Gott om garderober och förvaring

Gavellägenhet med bra ljusinsläpp

Välkommen att skicka in din intresseanmälan via HomeQ.

Bilder kan vara digitalt möblerade för att ge en känsla av hur bostaden kan inredas.

Lägenhet

6 665 kr/mån (varmhyra)

Åsvägen 11 A, 73560 Surahammar

Hyresvärd: Akka Egendom (Möller & Partners)

Rum
3 rok
Yta
67 m²
Våning
2
Kommun
Surahammar
✓ Balkong ✓ Tvättstuga ✓ Husdjur OK

Om denna bostad

Hyresrätt på Åsvägen 11 A i Surahammar med 3 rum och 67 kvm boyta. Månadshyran ligger på 6 665 kr.

Till bostaden hör balkong och tvättstuga. Husdjur är välkomna.

Fler lediga lägenheter finns i Surahammar kommun. Se alla lediga hyresrätter på Åsvägen.

Planritning

Planritning

Karta

Ansök hos hyresvärden →

Källa: akka-egendom • Senast uppdaterad: 30 Mar 2026 • Hyresvärden kontrollerad: 11 Apr 2026

Tema