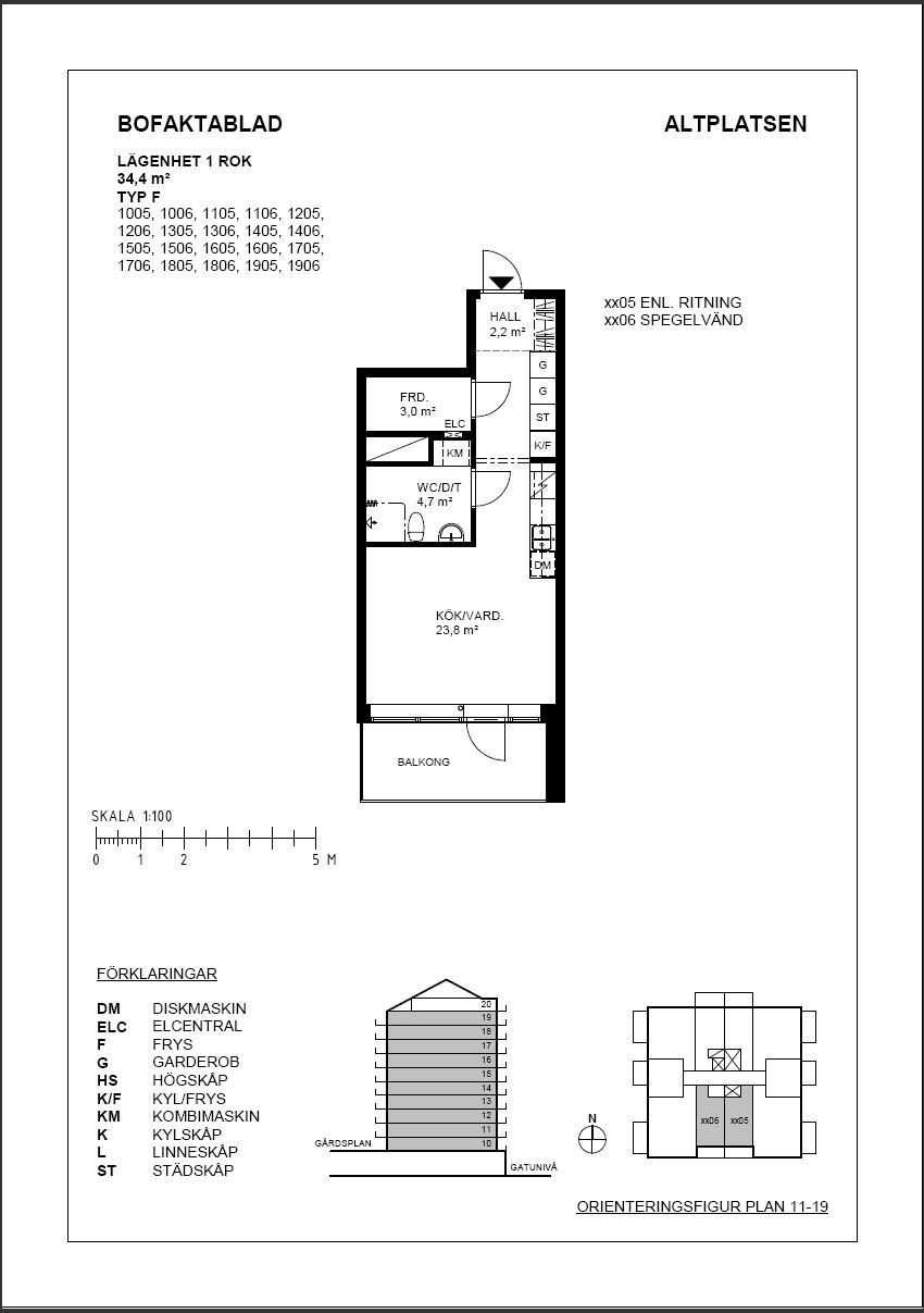
Ledig Lägenhet 1 rum, vån 2 på Altplatsen 3 i Göteborg